Sonnige Bürofläche in Linz, Schererstraße 18, 102 m² NFL im 3. OG mit Lift, inkl. Parkplätze! Nähe Infracenter! Barrierefrei!

BESCHREIBUNG:
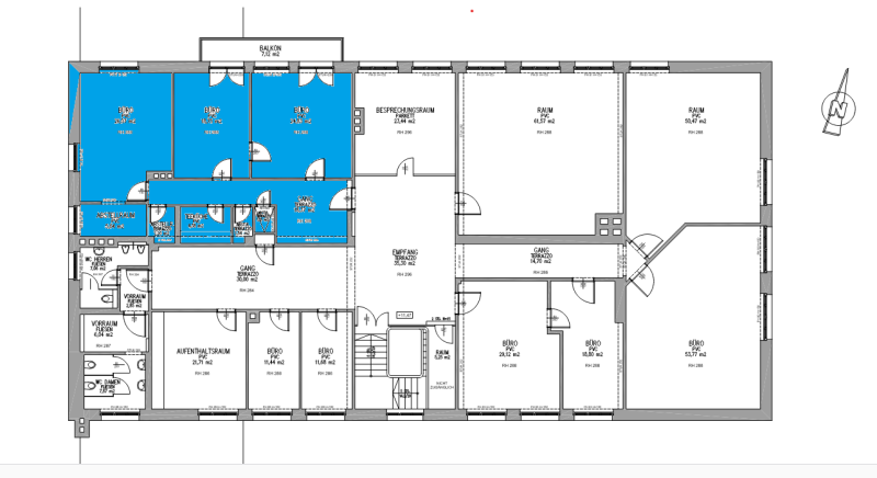
Schöne, helle Bürofläche mit Balkon im 3. Stock eines Bürohauses in 4030 Linz, Schererstraße 18, barrierefrei!
Drei großzügige Büroräume, Flur, Teeküche und div. Abstellräume.
Das Herren und Damen WC im Geschoß kann mitbenutzt werden.
Es gibt ausreichend Parkplätze für das Bürohaus, welche im Mietpreis enthalten sind. Sofort beziehbar! Nähe Infracenter und Autobahn!

Gerlinde Lanzerstorfer

Geschäftsführerin

0676 / 5480519

lanzerstorfer [at] donau-immobilien.at

Objekt Anfragen:

Lage

Ort:
Linz
Straße:
Schererstraße 18

Preise

Gesamtmiete:
€ 1.086,15
Miete:
€ 860,08
Heizkosten:
€ 57,74
Betriebskosten:
€ 180,61
sonst. Kosten:
€ 45,46
Gesamtbelastung:
€ 1.143,89
Kaution:
3.450 Euro
Provision:
2 BMM

Flächen

Nutzflläche ca.:
102,39 m²
Balkon Fl. ca.:
7,12 m²

Detaildaten

Verfügbar ab:
ab sofort
Stellplätze Freiplatz:
5
Barrierefrei:
Fahrstuhl:
Heizung:
Fernwärme
Heizwärmebedarf:
89,2 kWh/m²/Jahr
BESCHREIBUNG:
Schöne, helle Bürofläche mit Balkon im 3. Stock eines Bürohauses in 4030 Linz, Schererstraße 18, barrierefrei!
Drei großzügige Büroräume, Flur, Teeküche und div. Abstellräume.
Das Herren und Damen WC im Geschoß kann mitbenutzt werden.
Es gibt ausreichend Parkplätze für das Bürohaus, welche im Mietpreis enthalten sind. Sofort beziehbar! Nähe Infracenter und Autobahn!

Objekt an Freunde oder Bekannte senden: